网站首页

产品展示

智慧泵房

一体化泵站

潜水排污泵

潜水轴混流泵

液压闸门节流井

环保设备

闸门设备

应急抢险设备样本

关于中蓝

公司简介

企业文化

荣誉资质

工程案例

新闻动态

企业新闻

行业资讯

联系我们

联系方式

在线留言

Product centre
产品中心
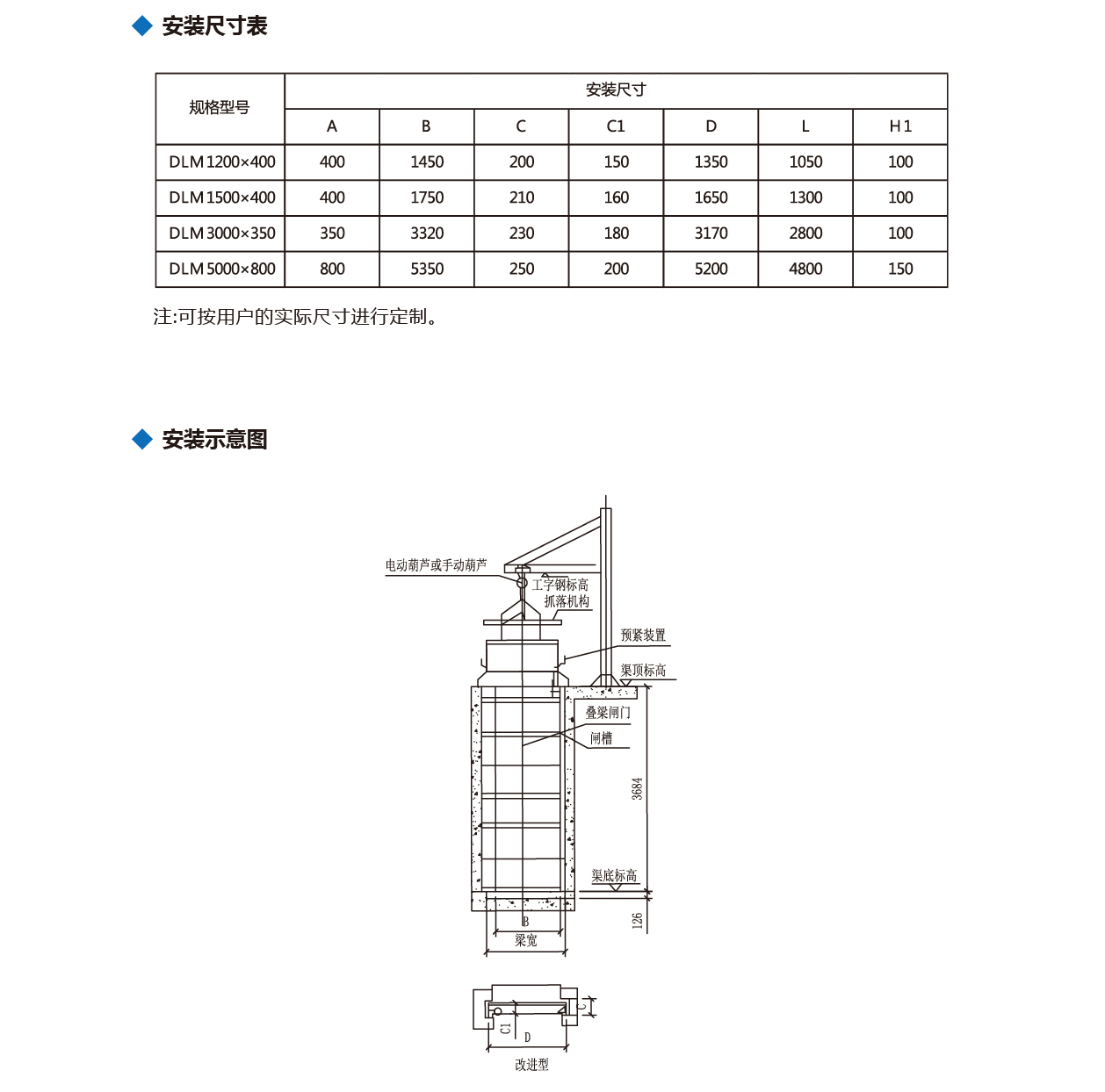
DLM型叠梁闸门
DLM型叠梁闸门
叠梁闸门是使用多块单独的闸板,逐块横向放入门槽内叠全成一个平面挡水结构。叠梁闸门结构简单,自重轻、起吊力小、搬运方便,但由于闸板与闸板之间止水靠自重而达到密封的作用,挡水结构的整体性差,靠水位密封差,渗漏量略大于钢制闸门,故叠梁闸门适用于作临时挡水或检修闸门之用。
产品详情

泰州市中蓝环保机械有限公司泰州市中蓝环保机械有限公司

服务热线
139-1442-4518
邮箱
13914424996@163.com
地址
江苏省泰兴市河失镇工业集聚区232省道西侧

Copyright © 2025 泰州市中蓝环保机械有限公司

苏ICP备2026002919号 网站建设:木之信息