网站首页

产品展示

智慧泵房

一体化泵站

潜水排污泵

潜水轴混流泵

液压闸门节流井

环保设备

闸门设备

应急抢险设备样本

关于中蓝

公司简介

企业文化

荣誉资质

工程案例

新闻动态

企业新闻

行业资讯

联系我们

联系方式

在线留言

Product centre
产品中心
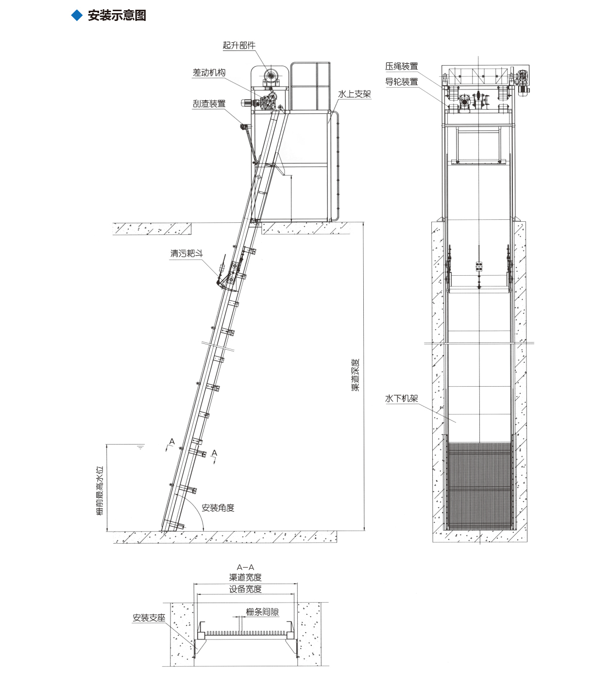
ZLGS型钢丝绳牵引式格栅除污机
ZLGS型钢丝绳牵引式格栅除污机
主要用于取水口、雨污水泵站或合流制泵站、拦截漂浮的粗大杂物或较重沉积物(砂、小石块等),一般作为中、粗格栅使用。
产品详情

泰州市中蓝环保机械有限公司泰州市中蓝环保机械有限公司泰州市中蓝环保机械有限公司

服务热线
139-1442-4518
邮箱
13914424996@163.com
地址
江苏省泰兴市河失镇工业集聚区232省道西侧

Copyright © 2025 泰州市中蓝环保机械有限公司

苏ICP备2026002919号 网站建设:木之信息